СТРАНИЦА НЕ НАЙДЕНА!
Свежие, новые объявления о продаже, аренде недвижимости, квартиры, комнаты, дома, машиноместа, коммерческая недвижимость в Подмосковье, Пушкино
2


Комната в 2-к квартире, 14м², 4/5 этаж
1 200 000 ₽ 85 800 ₽ за м²
мкр. Звягино, Шоссейная 2
Зеленоградский, ул. Шоссейная, д. 2.Состояние комнаты хорошее, санузел раздельный, кухня 6 кв. м.3 минуты пешком до станции Зеленоградская" (40 минут на электричке до метро Комсомольская).2 минуты на ...
4


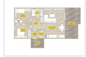
Комната в 3-к квартире, 31м², 2/2 этаж
1 300 000 ₽ 42 000 ₽ за м²
1-й Добролюбовский проезд 15/5
одаётся 1/2 доля трёхкомнатной квартиры (31.2 кв.м),в 2-х этажном доме,на 2-м этаже,площадь;общая 61.3 кв. м., жилая 43.4 кв. м., кухня 12.8 кв. м.,комната относящееся к доле 18 кв.м.В квартире устано...
4


Комната в 2-к квартире, на длительный срок, 17м², 4/9 этаж
5 000 ₽ в месяц
Крылова 1
Сдается хорошая комната со всей необходимой мебелью для комфортного проживания. Вся необходимая бытовая техника также имеется. На длительный срок. Вторая комната закрыта на ключ и сдаваться не будет
...
Агентство, 15.08.2022
3


Комната в 3-к квартире, на длительный срок, 10м², 1/9 этаж
12 000 ₽ в месяц
мкр. Инессы Арманд, Пушкинское шоссе 4
Две комнаты закрыты. Комната площадью 10 метров, кухня 7 метров Имеется все необходимое для проживания, диван, шкаф, стиральная машинка, холодильник. TV, для одного человека или семейной пары. Сла...
11


Участок 13 сот., ИЖС, в черте города
12 500 000 ₽ 9 700 ₽ за сотку
мкр. Новая Деревня, Центральная 89А
Расположен в черте города Пушкино частный
сектор (20минут пешком до жд ст. Пушкино, 5 минут
транспортом) Вся городская инфраструктура в пешей
доступности. На участке есть зимний дом 1962 года постр...
Собственник, 24.10.2022
Закладки
Личный кабинет









































